クレイシア北馬込 2階/東京都大田区北馬込1丁目(長原駅)の賃貸物件詳細
- 新着
- 即入居可
-
空室状況を
聞いてみる -
電話でお問合せ
03-3436-1537
- お部屋の状況を確認する(無料)
-
電話でお問合せ
03-3436-1537
保証金 --/--
償却 1ヶ月/--
東急池上線 / 旗の台駅 徒歩8分
東急大井町線 / 荏原町駅 徒歩11分
都営浅草線 / 馬込駅 徒歩14分
- タウンハウジングでご予約受付中です!
女性におすすめのポイント クレイシア北馬込 2階/東京都大田区北馬込1丁目
このお部屋は、東急池上線長原駅から徒歩7分に位置するマンションです。また、長原駅や、旗の台駅などの複数駅が利用できるのでアクセスも便利です!
このお部屋はお風呂とトイレが別なので、それぞれ清潔&おしゃれにこだわることができます。また2階以上にあるお部屋で、路面から室内が見られないので女性の一人暮らしでも少し安心。
この建物はオートロックがあるので基本的には住人以外は入れないので安心ですね!
嬉しいのがこのお部屋はネットの料金が無料なところ。動画なども見放題ですね!
スーパーやコンビニが徒歩分圏内に5件あるので一人暮らしに便利。最も近いのは徒歩3分の所にある、ファミリーマート!
もっと見る ▼
-
即入居 -
女子割 -
バス・
トイレ別 -
独立
洗面台 -
オートロック -
2階以上 -
システム
キッチン -
コンロ
二口 -
クロー
ゼット -
室内洗濯
機置き場
この物件に無料でお問合せ お問合せ内容を選択してね!
-
電話でお問合せ
03-3436-1537 -
株式会社タウンハウジング東京
浜松町店
営業時間:10時~19時
基本物件情報 クレイシア北馬込 2階/東京都大田区北馬込1丁目
- 家賃/管理費
- 9.1万円/10,000円
- 敷金(保証金)/ 礼金(償却)
- --(--)/1ヶ月(--)
- 初期費用が気になる方は
お気軽にお問合せください! -
初期費用を株式会社タウンハウジング東京浜松町店に聞いてみる!
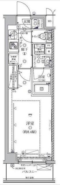
- 間取り/面積
-
1K
/26.1㎡
- 築年
- 2018年07月(築7年)
- 交通
-
東急池上線 / 長原駅 徒歩7分
東急池上線 / 旗の台駅 徒歩8分
東急大井町線 / 荏原町駅 徒歩11分
都営浅草線 / 馬込駅 徒歩14分
- 所在地
-
東京都 大田区 北馬込 1丁目
地図・周辺情報を見る
- 階数/方位
- 2階(6階建て)
/西向き
- 空室数
- 同じ建物に空室があと1件あります
空室を見る
- 種別/構造
- マンション/鉄筋コンクリート造
-
電話でお問合せ
03-3436-1537
こだわり設備・特徴 クレイシア北馬込 2階/東京都大田区北馬込1丁目
- 入居時期・条件
-
即入居
/
保証人不要
/
ペット相談可
/
独身可
- キッチン
- グリル付 / システムキッチン / コンロ2口以上
- セキュリティ
- オートロック / 防犯カメラ / 宅配ボックス / セキュリティー会社加入済 / TVモニターフォン / インターホン
- 周辺環境
- 2駅利用可
- 収納
- シューズボックス1ヵ所 / クローゼット1ヵ所
- 放送・通信
-
※BS受信可
/
インターネット接続(月額利用料無料)
/
※CS受信可
※インターネット接続環境、BS受信可、CATV、CS受信可について…利用料金は、共益費に含まれるタイプや個別に契約するタイプなど物件により異なります。詳しくは、物件お取り扱い不動産会社にお問合せください。
- その他設備・サービス
- 給湯 / 24時間ゴミ出し可 / 室内洗濯機置場 / 都市ガス / バルコニー / エレベーター1基 / 公営上水道 / エアコン1台 / 敷地内ごみ置き場 / 全居室フローリング
- 建物タイプ・デザイン
- 外壁タイル張り / 分譲賃貸
- 家賃保証会社など
- 保証会社必加入(その他:実費)※初回契約時:40%、更新時:10,000円、プラン有※新日本信用保証の場合口座振替手数料216円(税込)/月、ジャックスの場合口座振替手数料無し
- 保険
- --
- 備考
- 初期費用クレジット決済可(一部)/IT重説対応/オンライン相談・内見可
- その他諸費用
- その他費用(鍵交換:38500円) / その他費用(室内除菌消臭代:5500円) / その他費用(FAST ASSIST24:850円)
- 契約期間
- 一般契約:2年0ヶ月間
- 更新料
- 1ヶ月
- 取引形態
- 一般媒介
- 物件管理コード
- C01009083-000001204305279-0001
- 情報更新日
- 2025/12/17
- 次回更新予定日
- 2026/01/09
この物件に無料でお問合せ お問合せ内容を選択してね!
-
電話でお問合せ
03-3436-1537 -
株式会社タウンハウジング東京
浜松町店
営業時間:10時~19時
-
電話でお問合せ
03-3436-1537
物件についてお問合せ クレイシア北馬込 2階/東京都大田区北馬込1丁目
【掲載物件情報について】
Woman.CHINTAIでは安心してお部屋探しのできるサイトを目指して、物件情報の精度向上に努めております。Woman.CHINTAIに掲載されている物件情報について万が一相違がございましたら、以下のページからご連絡ください
お問い合わせページ同じ建物の空室情報一覧 クレイシア北馬込 2階/東京都大田区北馬込1丁目
取扱い店舗 クレイシア北馬込 2階/東京都大田区北馬込1丁目
-
株式会社タウンハウジング東京 浜松町店
お問合せ番号:R01204-305279
国土交通大臣免許(1)第009926号- 東京都港区芝大門2丁目 3-2 第2大吉ビル 1F
- 山手線 /浜松町駅
- 営業時間:10時~19時
- 定休日:水曜日
選択した物件をまとめて
建物ごとに探す
クレイシア北馬込 2階と同じ最寄り駅にある物件
クレイシア北馬込 2階と同じエリアにある物件
設備・条件から大田区の物件を再検索
設備・条件から長原駅の物件を再検索
設備・条件から旗の台駅の物件を再検索
設備・条件から荏原町駅の物件を再検索
























一人暮らしの女性に嬉しいポイントはこちら!