メインステージ中野坂上 1階/東京都中野区本町2丁目(中野坂上駅)の賃貸物件詳細
- 即入居可
-
空室状況を
聞いてみる -
電話でお問合せ
03-5342-2401
- お部屋の状況を確認する(無料)
-
電話でお問合せ
03-5342-2401
保証金 --/--
償却 --/--
都営大江戸線 / 西新宿五丁目駅 徒歩12分
丸ノ内線 / 中野新橋駅 徒歩12分
丸ノ内線 / 新中野駅 徒歩16分
- 内見依頼、オンライン対応、ご相談受付中!
女性におすすめのポイント メインステージ中野坂上 1階/東京都中野区本町2丁目
このお部屋は、都営大江戸線中野坂上駅から徒歩4分に位置する駅近のマンションです。また、中野坂上駅や、西新宿五丁目駅などの複数駅が利用できるのでアクセスも便利です!
このお部屋はお風呂とトイレが別なので、それぞれ清潔&おしゃれにこだわることができます。また洗濯機も室内に置けるので、天候にかかわらず洗濯ができ、洗濯機自体も長持ちする傾向にあります。
この建物はオートロックがあるので基本的には住人以外は入れないので安心ですね!
嬉しいのがこのお部屋は礼金がないところ。初期費用が抑えられますね!
スーパーやコンビニが徒歩分圏内に5件あるので一人暮らしに便利。最も近いのは徒歩3分の所にある、ローソン!
もっと見る ▼
-
即入居 -
女子割 -
バス・
トイレ別 -
独立
洗面台 -
オートロック -
2階以上 -
システム
キッチン -
コンロ
二口 -
クロー
ゼット -
室内洗濯
機置き場
この物件に無料でお問合せ お問合せ内容を選択してね!
-
電話でお問合せ
03-5342-2401 -
株式会社タウンハウジング東京
新中野店
営業時間:10:00~19:00
基本物件情報 メインステージ中野坂上 1階/東京都中野区本町2丁目
- 家賃/管理費
- 7.9万円/8,000円
- 敷金(保証金)/ 礼金(償却)
- --(--)/--(--)
- 初期費用が気になる方は
お気軽にお問合せください! -
初期費用を株式会社タウンハウジング東京新中野店に聞いてみる!
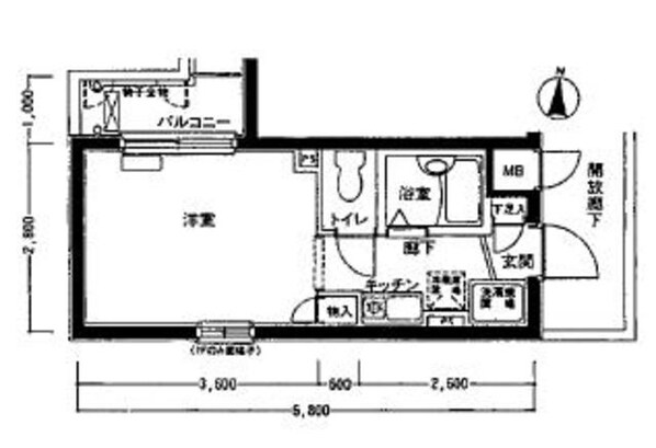
- 間取り/面積
-
1K
/19.04㎡
- 築年
- 1998年06月(築27年)
- 交通
-
都営大江戸線 / 中野坂上駅 徒歩4分
都営大江戸線 / 西新宿五丁目駅 徒歩12分
丸ノ内線 / 中野新橋駅 徒歩12分
丸ノ内線 / 新中野駅 徒歩16分
- 所在地
-
東京都 中野区 本町 2丁目
地図・周辺情報を見る
- 階数/方位
- 1階(3階建て)
/北向き
- 空室数
- 同じ建物に空室があと3件あります
空室を見る
- 種別/構造
- マンション/鉄筋コンクリート造
-
電話でお問合せ
03-5342-2401
こだわり設備・特徴 メインステージ中野坂上 1階/東京都中野区本町2丁目
- 入居時期・条件
-
即入居
/
保証人不要
/
独身可
- バス・トイレ
- 洗面台 / バス・トイレ別 / シャワー
- セキュリティ
- オートロック / 宅配ボックス / インターホン
- 周辺環境
- 2沿線利用可 / 閑静な住宅地 / 3駅利用可
- 収納
- シューズボックス1ヵ所
- 放送・通信
-
※BS受信可
/
インターネット接続(月額利用料無料)
/
※CS受信可
/
光ファイバー
/
※CATV
※インターネット接続環境、BS受信可、CATV、CS受信可について…利用料金は、共益費に含まれるタイプや個別に契約するタイプなど物件により異なります。詳しくは、物件お取り扱い不動産会社にお問合せください。
- その他設備・サービス
- 給湯 / 室内洗濯機置場 / 都市ガス / 陽当り良好 / バルコニー / エレベーター1基 / エアコン1台 / 全居室フローリング
- 建物タイプ・デザイン
- 分譲賃貸
- 駐輪・駐車
- 自転車置き場
- 家賃保証会社など
- 保証会社任意加入(その他:0.5ヶ月)※初回保証料50%/月次保証料1%
- 保険
- 損害保険加入要。
- 備考
- タウンハウジングは、200社以上の会社と取引があり、常に新着の情報を仕入れております。 地域トップクラスの情報量・取扱い物件をお客様にご提案させていただきます。一部クレジット払いも対応しています♪♪
- その他諸費用
- その他費用(鍵交換:22000円) / その他費用(室内清掃費用:49500円) / その他費用(契約事務手数料:11000円)
- 契約期間
- 一般契約:2年0ヶ月間
- 更新料
- 1.5ヶ月
- 取引形態
- 一般媒介
- 物件管理コード
- C01009081-000000461145229-0001
- 情報更新日
- 2025/12/05
- 次回更新予定日
- 2025/12/19
この物件に無料でお問合せ お問合せ内容を選択してね!
-
電話でお問合せ
03-5342-2401 -
株式会社タウンハウジング東京
新中野店
営業時間:10:00~19:00
-
電話でお問合せ
03-5342-2401
物件についてお問合せ メインステージ中野坂上 1階/東京都中野区本町2丁目
【掲載物件情報について】
Woman.CHINTAIでは安心してお部屋探しのできるサイトを目指して、物件情報の精度向上に努めております。Woman.CHINTAIに掲載されている物件情報について万が一相違がございましたら、以下のページからご連絡ください
お問い合わせページ同じ建物の空室情報一覧 メインステージ中野坂上 1階/東京都中野区本町2丁目
取扱い店舗 メインステージ中野坂上 1階/東京都中野区本町2丁目
-
株式会社タウンハウジング東京 新中野店
お問合せ番号:R00461-145229
国土交通大臣免許(1)第009926号女性スタッフ対応- 東京都中野区本町4丁目 44-11 アルペジオ新中野1階
- 丸ノ内線 /新中野駅
- 営業時間:10:00~19:00
- 定休日:毎週水曜日
選択した物件をまとめて
建物ごとに探す
メインステージ中野坂上 1階と同じ最寄り駅にある物件
メインステージ中野坂上 1階と同じエリアにある物件
設備・条件から中野区の物件を再検索
設備・条件から中野坂上駅の物件を再検索
設備・条件から西新宿五丁目駅の物件を再検索
設備・条件から中野新橋駅の物件を再検索
設備・条件から新中野駅の物件を再検索






























一人暮らしの女性に嬉しいポイントはこちら!