エヌステージ西船橋市川 1階/千葉県市川市二俣2丁目(西船橋駅)の賃貸物件詳細
- 即入居可
-
空室状況を
聞いてみる -
電話でお問合せ
047-326-1811
- お部屋の状況を確認する(無料)
-
電話でお問合せ
047-326-1811
保証金 --/--
償却 --/--
東西線 / 西船橋駅 徒歩19分
京成本線 / 東中山駅 徒歩19分
京葉線 / 二俣新町駅 徒歩19分
女性におすすめのポイント エヌステージ西船橋市川 1階/千葉県市川市二俣2丁目
このお部屋は、総武線西船橋駅から徒歩10分に位置するマンションです。また、西船橋駅や、東中山駅などの複数駅が利用できるのでアクセスも便利です!
このお部屋はお風呂とトイレが別なので、それぞれ清潔&おしゃれにこだわることができます。また独立洗面台があって収納やコンセントも使えるので、女性の身支度にはとても便利!
この建物はオートロックがあるので基本的には住人以外は入れないので安心ですね!
嬉しいのがこのお部屋は礼金がないところ。初期費用が抑えられますね!
スーパーやコンビニが徒歩分圏内に2件あるので一人暮らしに便利。最も近いのは徒歩5分の所にある、セブンイレブン市川二俣1丁目店!
もっと見る ▼
-
即入居 -
女子割 -
バス・
トイレ別 -
独立
洗面台 -
オートロック -
2階以上 -
システム
キッチン -
コンロ
二口 -
クロー
ゼット -
室内洗濯
機置き場
この物件に無料でお問合せ お問合せ内容を選択してね!
-
電話でお問合せ
047-326-1811 -
株式会社タウンハウジング千葉
市川店
営業時間:10:00~19:00
基本物件情報 エヌステージ西船橋市川 1階/千葉県市川市二俣2丁目
- 家賃/管理費
- 8.8万円/--円
- 敷金(保証金)/ 礼金(償却)
- --(--)/--(--)
- 初期費用が気になる方は
お気軽にお問合せください! -
初期費用を株式会社タウンハウジング千葉市川店に聞いてみる!
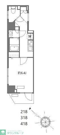
- 間取り/面積
-
1K
/26.07㎡
- 築年
- 2025年06月(1年未満)
- 交通
-
総武線 / 西船橋駅 徒歩10分
東西線 / 西船橋駅 徒歩19分
京成本線 / 東中山駅 徒歩19分
京葉線 / 二俣新町駅 徒歩19分
- 所在地
-
千葉県 市川市 二俣 2丁目
地図・周辺情報を見る
- 階数/方位
- 1階(6階建て)
/南西向き
- 空室数
- 同じ建物に空室があと10件あります
空室を見る
- 種別/構造
- マンション/鉄筋コンクリート造
-
電話でお問合せ
047-326-1811
こだわり設備・特徴 エヌステージ西船橋市川 1階/千葉県市川市二俣2丁目
- 入居時期・条件
-
即入居
/
保証人不要
/
独身可
- セキュリティ
- オートロック / 宅配ボックス / TVモニターフォン / インターホン
- 周辺環境
- 駅まで平坦 / 3沿線利用可 / 閑静な住宅地 / 3駅利用可
- 収納
- 全居室収納 / シューズボックス1ヵ所 / クローゼット1ヵ所
- 位置
- 角部屋
- 放送・通信
-
※BS受信可
/
※CS受信可
/
ネット専用回線
※インターネット接続環境、BS受信可、CATV、CS受信可について…利用料金は、共益費に含まれるタイプや個別に契約するタイプなど物件により異なります。詳しくは、物件お取り扱い不動産会社にお問合せください。
- その他設備・サービス
- 給湯 / 室内洗濯機置場 / 冷房 / 通風良好 / ベランダ / 都市ガス / 陽当り良好 / バルコニー / エレベーター1基 / 南西角住戸 / 2面採光 / 南面バルコニー / 公営上水道 / エアコン1台 / 24時間換気システム / 敷地内ごみ置き場 / 全居室フローリング
- 駐輪・駐車
- 自転車置き場
- 家賃保証会社など
- 保証会社必加入(その他:実費)※初回:月額総賃料の70%月額:月額総賃料の1.5%※指定のクレジットカードの所持または作成で月額クレジットカード払い可能です
- 保険
- --
- その他諸費用
- その他費用(室内清掃費用:55000円) / その他費用(安心サポート/2年:16500円)
- 契約期間
- 一般契約:2年0ヶ月間
- 更新料
- 1ヶ月
- 取引形態
- 一般媒介
- 物件管理コード
- C01009018-000001250112480-0001
- 情報更新日
- 2025/12/06
- 次回更新予定日
- 2025/12/20
この物件に無料でお問合せ お問合せ内容を選択してね!
-
電話でお問合せ
047-326-1811 -
株式会社タウンハウジング千葉
市川店
営業時間:10:00~19:00
-
電話でお問合せ
047-326-1811
周辺情報 エヌステージ西船橋市川 1階/千葉県市川市二俣2丁目
物件についてお問合せ エヌステージ西船橋市川 1階/千葉県市川市二俣2丁目
【掲載物件情報について】
Woman.CHINTAIでは安心してお部屋探しのできるサイトを目指して、物件情報の精度向上に努めております。Woman.CHINTAIに掲載されている物件情報について万が一相違がございましたら、以下のページからご連絡ください
お問い合わせページ同じ建物の空室情報一覧 エヌステージ西船橋市川 1階/千葉県市川市二俣2丁目
取扱い店舗 エヌステージ西船橋市川 1階/千葉県市川市二俣2丁目
-
株式会社タウンハウジング千葉 市川店
お問合せ番号:R01250-112480
国土交通大臣免許(1)第009927号- 千葉県市川市市川1丁目 8-13 市川ファイブビル2階
- 総武線 /市川駅
- 営業時間:10:00~19:00
- 定休日:水曜日
選択した物件をまとめて
建物ごとに探す
エヌステージ西船橋市川 1階と同じ最寄り駅にある物件
エヌステージ西船橋市川 1階と同じエリアにある物件
設備・条件から市川市の物件を再検索
設備・条件から西船橋駅の物件を再検索
設備・条件から東中山駅の物件を再検索
設備・条件から二俣新町駅の物件を再検索

























一人暮らしの女性に嬉しいポイントはこちら!