REGALEST栄生駅 3階/愛知県名古屋市西区栄生3丁目(栄生駅)の賃貸物件詳細
- 新着
-
空室状況を
聞いてみる -
電話でお問合せ
052-589-9006
- お部屋の状況を確認する(無料)
-
電話でお問合せ
052-589-9006
保証金 --/--
償却 --/--
名鉄犬山線 / 栄生駅 徒歩4分
名鉄犬山線 / 東枇杷島駅 徒歩8分
女性におすすめのポイント REGALEST栄生駅 3階/愛知県名古屋市西区栄生3丁目
このお部屋は、名鉄名古屋本線栄生駅から徒歩4分に位置する駅近のアパートです。また、栄生駅や、東枇杷島駅などの複数駅が利用できるのでアクセスも便利です!
このお部屋はお風呂とトイレが別なので、それぞれ清潔&おしゃれにこだわることができます。また2階以上にあるお部屋で、路面から室内が見られないので女性の一人暮らしでも少し安心。
この建物はオートロックがあるので基本的には住人以外は入れないので安心ですね!
嬉しいのがこのお部屋は礼金がないところ。初期費用が抑えられますね!
スーパーやコンビニが徒歩分圏内に4件あるので一人暮らしに便利。最も近いのは徒歩5分の所にある、ファミリーマート栄生二丁目店!
もっと見る ▼
-
即入居 -
女子割 -
バス・
トイレ別 -
独立
洗面台 -
オートロック -
2階以上 -
システム
キッチン -
コンロ
二口 -
クロー
ゼット -
室内洗濯
機置き場
この物件に無料でお問合せ お問合せ内容を選択してね!
-
電話でお問合せ
052-589-9006 -
株式会社タウンハウジング東海
名古屋駅前店
営業時間:10:00~19:00
基本物件情報 REGALEST栄生駅 3階/愛知県名古屋市西区栄生3丁目
- 家賃/管理費
- 6.4万円/3,000円
- 敷金(保証金)/ 礼金(償却)
- --(--)/--(--)
- 初期費用が気になる方は
お気軽にお問合せください! -
初期費用を株式会社タウンハウジング東海名古屋駅前店に聞いてみる!
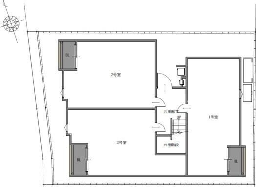
- 間取り/面積
-
1LDK
/30.64㎡
- 築年
- 2023年09月(築2年)
- 交通
-
名鉄名古屋本線 / 栄生駅 徒歩4分
名鉄犬山線 / 栄生駅 徒歩4分
名鉄犬山線 / 東枇杷島駅 徒歩8分
- 所在地
-
愛知県 名古屋市西区 栄生 3丁目
地図・周辺情報を見る
- 階数/方位
- 3階(3階建て)
/南東向き
- 空室数
- 同じ建物に空室があと2件あります
空室を見る
- 種別/構造
- アパート/木造
-
電話でお問合せ
052-589-9006
こだわり設備・特徴 REGALEST栄生駅 3階/愛知県名古屋市西区栄生3丁目
- 入居時期・条件
-
空予定(2026年02月中旬)
/
保証人不要
/
ペット相談可
/
二人入居可
/
独身可
- セキュリティ
- 24時間緊急通報システム / オートロック / 防犯カメラ / 宅配ボックス / TVモニターフォン / インターホン
- 周辺環境
- 平坦地 / 駅まで平坦 / 2沿線利用可 / 閑静な住宅地 / 3駅利用可
- 収納
- 玄関収納 / シューズボックス1ヵ所 / クローゼット1ヵ所
- 位置
- 最上階 / 角部屋
- 放送・通信
- インターネット接続(月額利用料無料) / ネット専用回線
- その他設備・サービス
- 給湯 / 室内物干し設備 / 室内洗濯機置場 / 陽当り良好 / バルコニー / 追い焚き機能 / LPガス / 公営上水道 / エアコン1台 / 24時間換気システム / 敷地内ごみ置き場 / 複層ガラス / 全居室フローリング
- 建物タイプ・デザイン
- 外壁サイディング / デザイナーズ
- 家賃保証会社など
- 保証会社必加入(その他:実費)※初回保証料:総賃料の50% 更新料:1万円/年 引落手数料:440円/月
- 保険
- --
- その他諸費用
- その他費用(鍵交換:16500円) / その他費用(室内清掃費用:64000円) / その他費用(町費:400円)
- 契約期間
- 一般契約:2年0ヶ月間
- 取引形態
- 一般媒介
- 物件管理コード
- C01008961-000001141077050-0001
- 情報更新日
- 2025/12/16
- 次回更新予定日
- 2026/01/08
この物件に無料でお問合せ お問合せ内容を選択してね!
-
電話でお問合せ
052-589-9006 -
株式会社タウンハウジング東海
名古屋駅前店
営業時間:10:00~19:00
-
電話でお問合せ
052-589-9006
周辺情報 REGALEST栄生駅 3階/愛知県名古屋市西区栄生3丁目
物件についてお問合せ REGALEST栄生駅 3階/愛知県名古屋市西区栄生3丁目
【掲載物件情報について】
Woman.CHINTAIでは安心してお部屋探しのできるサイトを目指して、物件情報の精度向上に努めております。Woman.CHINTAIに掲載されている物件情報について万が一相違がございましたら、以下のページからご連絡ください
お問い合わせページ取扱い店舗 REGALEST栄生駅 3階/愛知県名古屋市西区栄生3丁目
-
株式会社タウンハウジング東海 名古屋駅前店
お問合せ番号:R01141-077050
愛知県知事免許(1)第24824号- 愛知県名古屋市中村区名駅4丁目 27-6 μX MEIEKI 5階
- 名古屋市営地下鉄東山線 /名古屋駅
- 営業時間:10:00~19:00
- 定休日:水曜日(1月~3月は無休)
選択した物件をまとめて
建物ごとに探す
REGALEST栄生駅 3階と同じ最寄り駅にある物件
REGALEST栄生駅 3階と同じエリアにある物件
設備・条件から名古屋市西区の物件を再検索
設備・条件から栄生駅の物件を再検索


























一人暮らしの女性に嬉しいポイントはこちら!