ルーブル中野新橋参番館 1階/東京都中野区弥生町2丁目(中野新橋駅)の賃貸物件詳細
-
空室状況を
聞いてみる -
電話でお問合せ
03-3220-7700
- お部屋の状況を確認する(無料)
-
電話でお問合せ
03-3220-7700
保証金 --/--
償却 1ヶ月/--
丸ノ内線 / 新中野駅 徒歩11分
丸ノ内線 / 中野富士見町駅 徒歩7分
都営大江戸線 / 西新宿五丁目駅 徒歩17分
- お部屋探しはタウンハウジングへ♪
女性におすすめのポイント ルーブル中野新橋参番館 1階/東京都中野区弥生町2丁目
このお部屋は、丸ノ内線中野新橋駅から徒歩4分に位置する駅近のマンションです。また、中野新橋駅や、新中野駅などの複数駅が利用できるのでアクセスも便利です!
このお部屋はお風呂とトイレが別なので、それぞれ清潔&おしゃれにこだわることができます。また独立洗面台があって収納やコンセントも使えるので、女性の身支度にはとても便利!
この建物はオートロックがあるので基本的には住人以外は入れないので安心ですね!
嬉しいのがこのお部屋は敷金がないところ。初期費用が抑えられますね!
スーパーやコンビニが徒歩分圏内に4件あるので一人暮らしに便利。最も近いのは徒歩3分の所にある、ローソン中野新橋店!
もっと見る ▼
-
即入居 -
女子割 -
バス・
トイレ別 -
独立
洗面台 -
オートロック -
2階以上 -
システム
キッチン -
コンロ
二口 -
クロー
ゼット -
室内洗濯
機置き場
この物件に無料でお問合せ お問合せ内容を選択してね!
-
電話でお問合せ
03-3220-7700 -
株式会社タウンハウジング東京
荻窪店
営業時間:10:00~19:00
基本物件情報 ルーブル中野新橋参番館 1階/東京都中野区弥生町2丁目
- 家賃/管理費
- 11.7万円/22,000円
- 敷金(保証金)/ 礼金(償却)
- --(--)/1ヶ月(--)
- 初期費用が気になる方は
お気軽にお問合せください! -
初期費用を株式会社タウンハウジング東京荻窪店に聞いてみる!
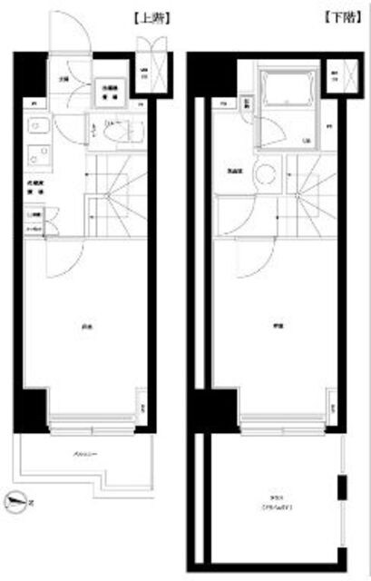
- 間取り/面積
-
2K/40.5㎡
- 築年
- 2009年02月(築16年)
- 交通
-
丸ノ内線 / 中野新橋駅 徒歩4分
丸ノ内線 / 新中野駅 徒歩11分
丸ノ内線 / 中野富士見町駅 徒歩7分
都営大江戸線 / 西新宿五丁目駅 徒歩17分
- 所在地
-
東京都 中野区 弥生町 2丁目
地図・周辺情報を見る
- 階数/方位
- 1階(5階建て・地下1階)
/東向き
- 空室数
- 同じ建物に空室があと10件あります
空室を見る
- 種別/構造
- マンション/鉄筋コンクリート造
-
電話でお問合せ
03-3220-7700
こだわり設備・特徴 ルーブル中野新橋参番館 1階/東京都中野区弥生町2丁目
- 入居時期・条件
-
空予定(2026年01月下旬)
/
保証人不要
/
二人入居可
/
独身可
- セキュリティ
- オートロック / 防犯カメラ / 宅配ボックス / TVモニターフォン / インターホン
- 周辺環境
- 駅前 / 閑静な住宅地 / 2駅利用可
- 収納
- シューズボックス1ヵ所 / クローゼット1ヵ所
- 放送・通信
-
光ファイバー
/
※CATV
※インターネット接続環境、BS受信可、CATV、CS受信可について…利用料金は、共益費に含まれるタイプや個別に契約するタイプなど物件により異なります。詳しくは、物件お取り扱い不動産会社にお問合せください。
- その他設備・サービス
- 給湯 / 室内洗濯機置場 / 振分タイプ / 通風良好 / 都市ガス / 陽当り良好 / バルコニー / テラス / エレベーター1基 / エアコン1台 / 24時間換気システム / 敷地内ごみ置き場 / 全居室フローリング
- 建物タイプ・デザイン
- 外壁タイル張り / 分譲賃貸
- 家賃保証会社など
- 保証会社必加入(その他:0.3ヶ月)※初回保証料30%
- 保険
- 損害保険加入要。
- 備考
- ★お部屋探しはタウンハウジングまで★
- その他諸費用
- その他費用(鍵交換:16500円) / その他費用(TFDClub:17000円)
- 契約期間
- 一般契約:2年0ヶ月間
- 更新料
- 1ヶ月
- 取引形態
- 一般媒介
- 物件管理コード
- C01008915-000001107012670-0001
- 情報更新日
- 2025/12/05
- 次回更新予定日
- 2025/12/19
この物件に無料でお問合せ お問合せ内容を選択してね!
-
電話でお問合せ
03-3220-7700 -
株式会社タウンハウジング東京
荻窪店
営業時間:10:00~19:00
-
電話でお問合せ
03-3220-7700
物件についてお問合せ ルーブル中野新橋参番館 1階/東京都中野区弥生町2丁目
【掲載物件情報について】
Woman.CHINTAIでは安心してお部屋探しのできるサイトを目指して、物件情報の精度向上に努めております。Woman.CHINTAIに掲載されている物件情報について万が一相違がございましたら、以下のページからご連絡ください
お問い合わせページ同じ建物の空室情報一覧 ルーブル中野新橋参番館 1階/東京都中野区弥生町2丁目
取扱い店舗 ルーブル中野新橋参番館 1階/東京都中野区弥生町2丁目
-
株式会社タウンハウジング東京 荻窪店
お問合せ番号:R01107-012670
国土交通大臣免許(1)第9926号女性スタッフ対応- 東京都杉並区荻窪5丁目 14-13
- 中央線 /荻窪駅
- 営業時間:10:00~19:00
- 定休日:水曜日
選択した物件をまとめて
建物ごとに探す
ルーブル中野新橋参番館 1階と同じ最寄り駅にある物件
ルーブル中野新橋参番館 1階と同じエリアにある物件
設備・条件から中野区の物件を再検索
設備・条件から中野新橋駅の物件を再検索
設備・条件から新中野駅の物件を再検索
設備・条件から中野富士見町駅の物件を再検索
設備・条件から西新宿五丁目駅の物件を再検索





























一人暮らしの女性に嬉しいポイントはこちら!