斉藤ビル 4階/東京都東大和市南街5丁目(東大和市駅)の賃貸物件詳細
家賃:12万円
(管理費:--円)5K95.2㎡
- 即入居可
-
空室状況を
聞いてみる -
電話でお問合せ
042-571-3200
- お部屋の状況を確認する(無料)
-
電話でお問合せ
042-571-3200
12万円
(管理費:--円)
敷金/
保証金 3ヶ月/--
保証金 3ヶ月/--
礼金/
償却 1ヶ月/--
償却 1ヶ月/--
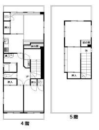
間取り
5K
広さ
95.2㎡
階
4階(5階建て)
築年数
築45年
種別
マンション
住所
東京都東大和市南街5丁目
交通
西武拝島線 / 東大和市駅
徒歩5分
多摩都市モノレール / 玉川上水駅 徒歩18分
多摩都市モノレール / 桜街道駅 徒歩19分
多摩都市モノレール / 玉川上水駅 徒歩18分
多摩都市モノレール / 桜街道駅 徒歩19分
- 国立市・立川市・国分寺市・小金井市・東村山市・東大和市が専門エリアです!是非お問い合わせください!
女性におすすめのポイント 斉藤ビル 4階/東京都東大和市南街5丁目
このお部屋は、西武拝島線東大和市駅から徒歩5分に位置する駅近のマンションです。また、東大和市駅や、玉川上水駅などの複数駅が利用できるのでアクセスも便利です!
このお部屋はお風呂とトイレが別なので、それぞれ清潔&おしゃれにこだわることができます。また2階以上にあるお部屋で、路面から室内が見られないので女性の一人暮らしでも少し安心。
スーパーやコンビニが徒歩分圏内に4件あるので一人暮らしに便利。最も近いのは徒歩1分の所にある、セブンイレブン東大和南街5丁目店!
もっと見る ▼
-
即入居 -
バス・
トイレ別 -
独立
洗面台 -
オートロック -
2階以上 -
システム
キッチン -
コンロ
二口 -
クロー
ゼット -
室内洗濯
機置き場
この物件に無料でお問合せ お問合せ内容を選択してね!
-
電話でお問合せ
042-571-3200 -
株式会社タウンハウジング東京
国立店
営業時間:10:00~19:00
基本物件情報 斉藤ビル 4階/東京都東大和市南街5丁目
- 家賃/管理費
- 12万円/--円
- 敷金(保証金)/ 礼金(償却)
- 3ヶ月(--)/1ヶ月(--)
- 初期費用が気になる方は
お気軽にお問合せください! -
初期費用を株式会社タウンハウジング東京国立店に聞いてみる!
- 間取り/面積
-
5K/95.2㎡
- 築年
- 1980年08月(築45年)
- 交通
-
西武拝島線 / 東大和市駅 徒歩5分
多摩都市モノレール / 玉川上水駅 徒歩18分
多摩都市モノレール / 桜街道駅 徒歩19分
- 所在地
-
東京都 東大和市 南街 5丁目
地図・周辺情報を見る
- 階数/方位
- 4階(5階建て)
/南向き
- 空室数
- 同じ建物に空室があと8件あります
空室を見る
- 種別/構造
- マンション/鉄筋コンクリート造
-
電話でお問合せ
042-571-3200
こだわり設備・特徴 斉藤ビル 4階/東京都東大和市南街5丁目
- 入居時期・条件
-
即入居
/
ペット相談可
- バス・トイレ
- 洗面所独立 / 洗面台 / バス・トイレ別 / 脱衣所 / シャワー
- キッチン
- ガスコンロ付 / コンロ2口以上
- セキュリティ
- インターホン
- 収納
- シューズボックス1ヵ所
- 位置
- 角部屋 / 南向き
- その他設備・サービス
- 室内洗濯機置場 / 玄関ホール / 都市ガス / バルコニー / 追い焚き機能 / 南面バルコニー / 公営上水道 / エアコン2台 / 24時間換気システム
- 建物タイプ・デザイン
- メゾネット
- 家賃保証会社など
- 保証会社必加入(その他:実費)※初回保証料:50% 1年毎に10,000円
- 保険
- 損害保険加入要。
- 備考
- 国立市はもちろん、立川市・国分寺市・小金井市・東村山市・東大和市が専門エリアの専門店です。専門エリアの情報量はどこにも負けません。他社ではご紹介されない情報をたっぷりご提供致します。
- 契約期間
- 一般契約:2年0ヶ月間
- 更新料
- 1ヶ月
- 取引形態
- 一般媒介
- 物件管理コード
- C01008905-000001097087541-0001
- 情報更新日
- 2026/02/05
- 次回更新予定日
- 2026/02/19
この物件に無料でお問合せ お問合せ内容を選択してね!
-
電話でお問合せ
042-571-3200 -
株式会社タウンハウジング東京
国立店
営業時間:10:00~19:00
-
電話でお問合せ
042-571-3200
物件についてお問合せ 斉藤ビル 4階/東京都東大和市南街5丁目
【掲載物件情報について】
Woman.CHINTAIでは安心してお部屋探しのできるサイトを目指して、物件情報の精度向上に努めております。Woman.CHINTAIに掲載されている物件情報について万が一相違がございましたら、以下のページからご連絡ください
お問い合わせページ取扱い店舗 斉藤ビル 4階/東京都東大和市南街5丁目
-
株式会社タウンハウジング東京 国立店
お問合せ番号:R01097-087541
国土交通大臣免許(1)第9926号女性スタッフ対応- 東京都国立市中1丁目 9-22
- 中央線 /国立駅
- 営業時間:10:00~19:00
- 定休日:毎週水曜日
選択した物件をまとめて










一人暮らしの女性に嬉しいポイントはこちら!