VITA八王子 4階/東京都八王子市南新町(八王子駅)の賃貸物件詳細
- 即入居可
-
空室状況を
聞いてみる -
電話でお問合せ
042-339-0700
- お部屋の状況を確認する(無料)
-
電話でお問合せ
042-339-0700
保証金 --/--
償却 --/--
京王線・京王新線 / 京王八王子駅 徒歩15分
中央線 / 西八王子駅 徒歩24分
- ~お電話でのお問い合わせで、より迅速にご対応させて頂きます~地域密着タウンハウジングまで~
女性におすすめのポイント VITA八王子 4階/東京都八王子市南新町
このお部屋は、中央線八王子駅から徒歩12分に位置するマンションです。また、八王子駅や、京王八王子駅などの複数駅が利用できるのでアクセスも便利です!
このお部屋はお風呂とトイレが別なので、それぞれ清潔&おしゃれにこだわることができます。また2階以上にあるお部屋で、路面から室内が見られないので女性の一人暮らしでも少し安心。
この建物はオートロックがあるので基本的には住人以外は入れないので安心ですね!
嬉しいのがこのお部屋は礼金がないところ。初期費用が抑えられますね!
スーパーやコンビニが徒歩分圏内に3件あるので一人暮らしに便利。最も近いのは徒歩3分の所にある、ローソン八王子南新町店!
もっと見る ▼
-
即入居 -
女子割 -
バス・
トイレ別 -
独立
洗面台 -
オートロック -
2階以上 -
システム
キッチン -
コンロ
二口 -
クロー
ゼット -
室内洗濯
機置き場
この物件に無料でお問合せ お問合せ内容を選択してね!
-
電話でお問合せ
042-339-0700 -
株式会社タウンハウジング東京
聖蹟桜ヶ丘店
営業時間:10:00~19:00
基本物件情報 VITA八王子 4階/東京都八王子市南新町
- 家賃/管理費
- 22.1万円/--円
- 敷金(保証金)/ 礼金(償却)
- --(--)/--(--)
- 初期費用が気になる方は
お気軽にお問合せください! -
初期費用を株式会社タウンハウジング東京聖蹟桜ヶ丘店に聞いてみる!
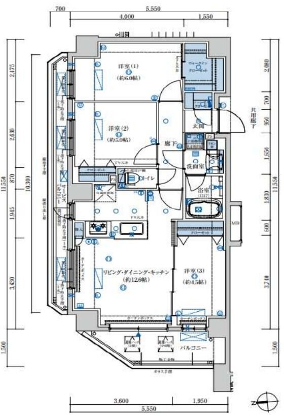
- 間取り/面積
-
3LDK/63.06㎡
- 築年
- 2025年02月(1年未満)
- 交通
-
中央線 / 八王子駅 徒歩12分
京王線・京王新線 / 京王八王子駅 徒歩15分
中央線 / 西八王子駅 徒歩24分
- 所在地
-
東京都 八王子市 南新町
地図・周辺情報を見る
- 階数/方位
- 4階(7階建て)
/西向き
- 空室数
- 同じ建物に空室があと10件あります
空室を見る
- 種別/構造
- マンション/鉄筋コンクリート造
-
電話でお問合せ
042-339-0700
こだわり設備・特徴 VITA八王子 4階/東京都八王子市南新町
- 入居時期・条件
-
即入居
/
保証人不要
/
ペット相談可
(飼育の場合:敷金1ヶ月増)
/
二人入居可
/
独身可
- セキュリティ
- オートロック / 防犯カメラ / 宅配ボックス / TVモニターフォン / インターホン
- 周辺環境
- 2沿線利用可 / 2駅利用可
- 収納
- シューズボックス1ヵ所 / クローゼット1ヵ所 / ウォークインクローゼット1ヵ所
- 位置
- 角部屋
- 放送・通信
- インターネット接続(月額利用料無料) / ネット専用回線
- その他設備・サービス
- 給湯 / 24時間ゴミ出し可 / 室内洗濯機置場 / 都市ガス / バルコニー / エレベーター1基 / 追い焚き機能 / 2面採光 / 公営上水道 / エアコン1台 / 24時間換気システム / 敷地内ごみ置き場 / 全居室フローリング / クッションフロア
- 建物タイプ・デザイン
- デザイナーズ
- 駐輪・駐車
-
有料駐車場1 台(16,500円/月)
自転車置き場 / バイク置場
※駐車場の金額表示は1台分の表示となります。
- 家賃保証会社など
- 保証会社必加入(その他:実費)※初回保証料:月額総額の50%・1年毎に1.5万円
- 保険
- 損害保険加入要。
- 備考
- ★いい部屋見つかる!お部屋探しはタウンハウジングまで♪★初期費用分割クレジット決済可・賃料交渉入居日交渉等、諸条件なんでもご相談ください★
- その他諸費用
- 付属設備(駐輪場代金:550円)※月あたり料金 / 付属設備(バイク置き場:3300円)※月あたり料金 / 敷金積み増し(ペット飼育:1ヶ月) / その他費用(口座振替手数料:550円) / その他費用(入居サポート:1100円)
- 契約期間
- 一般契約:2年0ヶ月間
- 更新料
- 1ヶ月
- 取引形態
- 一般媒介
- 物件管理コード
- C01008885-000001087144721-0001
- 情報更新日
- 2025/12/08
- 次回更新予定日
- 2025/12/22
この物件に無料でお問合せ お問合せ内容を選択してね!
-
電話でお問合せ
042-339-0700 -
株式会社タウンハウジング東京
聖蹟桜ヶ丘店
営業時間:10:00~19:00
-
電話でお問合せ
042-339-0700
周辺情報 VITA八王子 4階/東京都八王子市南新町
- ショッピングセンター/アウトレットモール
- ショッピングセンター/アウトレットモール(ドン・キホーテ八王子駅前店)まで 740m
- ショッピングセンター/アウトレットモール
- ショッピングセンター/アウトレットモール(八王子東急スクエア)まで 800m
- ショッピングセンター/アウトレットモール
- ショッピングセンター/アウトレットモール(CELEO八王子南館)まで 1120m
- スーパー
- スーパー(エコス大横店)まで 500m
- スーパー
- スーパー(イオンフードスタイル八王子店)まで 970m
- コンビニ
- コンビニ(ローソン八王子南新町店)まで 190m
- ドラッグストア
- ドラッグストア(マツモトキヨシ八王子万町店)まで 690m
物件についてお問合せ VITA八王子 4階/東京都八王子市南新町
【掲載物件情報について】
Woman.CHINTAIでは安心してお部屋探しのできるサイトを目指して、物件情報の精度向上に努めております。Woman.CHINTAIに掲載されている物件情報について万が一相違がございましたら、以下のページからご連絡ください
お問い合わせページ同じ建物の空室情報一覧 VITA八王子 4階/東京都八王子市南新町
取扱い店舗 VITA八王子 4階/東京都八王子市南新町
-
株式会社タウンハウジング東京 聖蹟桜ヶ丘店
お問合せ番号:R01087-144721
国土交通大臣免許(1)第9926号- 東京都多摩市一ノ宮2丁目 11-22
- 京王線・京王新線 /聖蹟桜ヶ丘駅
- 営業時間:10:00~19:00
- 定休日:水曜日
選択した物件をまとめて
建物ごとに探す
VITA八王子 4階と同じ最寄り駅にある物件
VITA八王子 4階と同じエリアにある物件
設備・条件から八王子市の物件を再検索
設備・条件から八王子駅の物件を再検索
設備・条件から京王八王子駅の物件を再検索
設備・条件から西八王子駅の物件を再検索























一人暮らしの女性に嬉しいポイントはこちら!