クレイシア板橋本町 9階/東京都板橋区本町(板橋本町駅)の賃貸物件詳細
-
空室状況を
聞いてみる -
電話でお問合せ
03-3903-4433
- お部屋の状況を確認する(無料)
-
電話でお問合せ
03-3903-4433
保証金 1ヶ月/--
償却 1ヶ月/--
都営三田線 / 本蓮沼駅 徒歩17分
埼京線・川越線 / 十条駅 徒歩18分
- ★お部屋探しはタウンハウジングにお任せください★
女性におすすめのポイント クレイシア板橋本町 9階/東京都板橋区本町
このお部屋は、都営三田線板橋本町駅から徒歩4分に位置する駅近のマンションです。また、板橋本町駅や、本蓮沼駅などの複数駅が利用できるのでアクセスも便利です!
このお部屋はお風呂とトイレが別なので、それぞれ清潔&おしゃれにこだわることができます。また2階以上にあるお部屋で、路面から室内が見られないので女性の一人暮らしでも少し安心。
この建物はオートロックがあるので基本的には住人以外は入れないので安心ですね!
嬉しいのがこのお部屋はネットの料金が無料なところ。動画なども見放題ですね!
スーパーやコンビニが徒歩分圏内に4件あるので一人暮らしに便利。最も近いのは徒歩5分の所にある、セブンイレブン板橋本町駅東店!
もっと見る ▼
-
即入居 -
女子割 -
バス・
トイレ別 -
独立
洗面台 -
オートロック -
2階以上 -
システム
キッチン -
コンロ
二口 -
クロー
ゼット -
室内洗濯
機置き場
この物件に無料でお問合せ お問合せ内容を選択してね!
-
電話でお問合せ
03-3903-4433 -
株式会社タウンハウジング東京
赤羽店
営業時間:10:00~19:00
基本物件情報 クレイシア板橋本町 9階/東京都板橋区本町
- 家賃/管理費
- 9.2万円/12,000円
- 敷金(保証金)/ 礼金(償却)
- 1ヶ月(--)/1ヶ月(--)
- 初期費用が気になる方は
お気軽にお問合せください! -
初期費用を株式会社タウンハウジング東京赤羽店に聞いてみる!
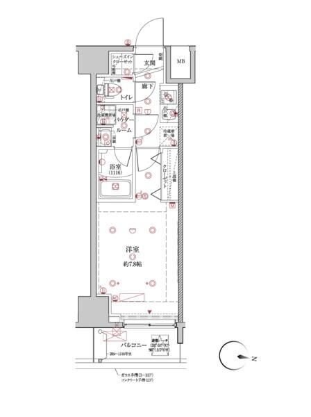
- 間取り/面積
-
1K
/25.43㎡
- 築年
- 2021年01月(築4年)
- 交通
-
都営三田線 / 板橋本町駅 徒歩4分
都営三田線 / 本蓮沼駅 徒歩17分
埼京線・川越線 / 十条駅 徒歩18分
- 所在地
-
東京都 板橋区 本町
地図・周辺情報を見る
- 階数/方位
- 9階(11階建て)
/東向き
- 空室数
- 同じ建物に空室があと10件あります
空室を見る
- 種別/構造
- マンション/鉄筋コンクリート造
-
電話でお問合せ
03-3903-4433
こだわり設備・特徴 クレイシア板橋本町 9階/東京都板橋区本町
- 入居時期・条件
-
空予定(2026年01月下旬)
/
保証人不要
/
ペット相談可
/
独身可
- セキュリティ
- 24時間緊急通報システム / オートロック / 防犯カメラ / 宅配ボックス / セキュリティー会社加入済 / ダブルロックキー / TVモニターフォン / ディンプルキー
- 周辺環境
- 2沿線利用可
- 収納
- シューズウォークインクローゼット / 全居室収納 / シューズボックス1ヵ所 / クローゼット1ヵ所 / シューズインクローゼット
- 放送・通信
-
※BS受信可
/
インターネット接続(月額利用料無料)
/
※CS受信可
/
マルチメディアコンセント
※インターネット接続環境、BS受信可、CATV、CS受信可について…利用料金は、共益費に含まれるタイプや個別に契約するタイプなど物件により異なります。詳しくは、物件お取り扱い不動産会社にお問合せください。
- その他設備・サービス
- 給湯 / 室内洗濯機置場 / 都市ガス / バルコニー / エレベーター1基 / 公営上水道 / 24時間換気システム / 全室エアコン / 敷地内ごみ置き場 / ダウンライト / 人感照明センサー / 全居室フローリング
- 建物タイプ・デザイン
- 外壁タイル張り
- 家賃保証会社など
- 保証会社必加入(その他:0.4ヶ月)
- 保険
- 損害保険加入要。
- 備考
- 1年以内の解約で家賃1か月分の違約金が発生いたします。
- その他諸費用
- その他費用(室内除菌消臭代:8800円) / その他費用(FAST ASSIST24\/月額:1100円)
- 契約期間
- 一般契約:2年0ヶ月間
- 更新料
- 1ヶ月
- 取引形態
- 一般媒介
- 物件管理コード
- C01008702-000000507184366-0001
- 情報更新日
- 2025/12/06
- 次回更新予定日
- 2025/12/20
この物件に無料でお問合せ お問合せ内容を選択してね!
-
電話でお問合せ
03-3903-4433 -
株式会社タウンハウジング東京
赤羽店
営業時間:10:00~19:00
-
電話でお問合せ
03-3903-4433
物件についてお問合せ クレイシア板橋本町 9階/東京都板橋区本町
【掲載物件情報について】
Woman.CHINTAIでは安心してお部屋探しのできるサイトを目指して、物件情報の精度向上に努めております。Woman.CHINTAIに掲載されている物件情報について万が一相違がございましたら、以下のページからご連絡ください
お問い合わせページ同じ建物の空室情報一覧 クレイシア板橋本町 9階/東京都板橋区本町
-
- 2階 201号室
- 家賃
-
14
万円
(管理費等 10,000円)
- 管理費
- 10,000円
- 敷金/保証金
- 1ヶ月/--
- 礼金/償却
- 1ヶ月/--
- 間取り
- 1LDK
- 専有面積
- 40.74㎡
- その他
- 東向き
-
- 3階 313号室
- 家賃
-
8.9
万円
(管理費等 12,000円)
- 管理費
- 12,000円
- 敷金/保証金
- 1ヶ月/--
- 礼金/償却
- 1ヶ月/--
- 間取り
- 1K
- 専有面積
- 25.46㎡
- その他
- 南向き
-
- 3階 313号室
- 家賃
-
8.9
万円
(管理費等 12,000円)
- 管理費
- 12,000円
- 敷金/保証金
- 1ヶ月/--
- 礼金/償却
- 1ヶ月/--
- 間取り
- 1K
- 専有面積
- 25.46㎡
- その他
- 南向き
取扱い店舗 クレイシア板橋本町 9階/東京都板橋区本町
-
株式会社タウンハウジング東京 赤羽店
お問合せ番号:R00507-184366
国土交通大臣免許(1)第9926号- 東京都北区赤羽2-1-19 青柳エンパイヤビル1F
- 京浜東北線・根岸線 /赤羽駅
- 営業時間:10:00~19:00
- 定休日:水曜日
選択した物件をまとめて
建物ごとに探す
クレイシア板橋本町 9階と同じ最寄り駅にある物件
クレイシア板橋本町 9階と同じエリアにある物件
設備・条件から板橋区の物件を再検索
設備・条件から板橋本町駅の物件を再検索
設備・条件から本蓮沼駅の物件を再検索































一人暮らしの女性に嬉しいポイントはこちら!