RELUXIA東向島 2階/東京都墨田区東向島3丁目(曳舟駅)の賃貸物件詳細
-
空室状況を
聞いてみる -
電話でお問合せ
03-5830-8566
- お部屋の状況を確認する(無料)
-
電話でお問合せ
03-5830-8566
保証金 --/--
償却 1ヶ月/--
東武伊勢崎線・スカイツリーライン / 曳舟駅 徒歩5分
東武伊勢崎線・スカイツリーライン / 東向島駅 徒歩6分
京成押上線 / 京成曳舟駅 徒歩7分
- お部屋探しはタウンハウジング浅草店にお任せくださいませ。
女性におすすめのポイント RELUXIA東向島 2階/東京都墨田区東向島3丁目
このお部屋は、東武亀戸線曳舟駅から徒歩5分に位置する駅近のマンションです。また、曳舟駅や、東向島駅などの複数駅が利用できるのでアクセスも便利です!
このお部屋はお風呂とトイレが別なので、それぞれ清潔&おしゃれにこだわることができます。また2階以上にあるお部屋で、路面から室内が見られないので女性の一人暮らしでも少し安心。
この建物はオートロックがあるので基本的には住人以外は入れないので安心ですね!
嬉しいのがこのお部屋はネットの料金が無料なところ。動画なども見放題ですね!
スーパーやコンビニが徒歩分圏内に3件あるので一人暮らしに便利。最も近いのは徒歩9分の所にある、アコレ東向島店!
もっと見る ▼
-
即入居 -
女子割 -
バス・
トイレ別 -
独立
洗面台 -
オートロック -
2階以上 -
システム
キッチン -
コンロ
二口 -
クロー
ゼット -
室内洗濯
機置き場
この物件に無料でお問合せ お問合せ内容を選択してね!
-
電話でお問合せ
03-5830-8566 -
株式会社タウンハウジング東京
浅草店
営業時間:10:00~19:00
基本物件情報 RELUXIA東向島 2階/東京都墨田区東向島3丁目
- 家賃/管理費
- 16.5万円/20,000円
- 敷金(保証金)/ 礼金(償却)
- --(--)/1ヶ月(--)
- 初期費用が気になる方は
お気軽にお問合せください! -
初期費用を株式会社タウンハウジング東京浅草店に聞いてみる!
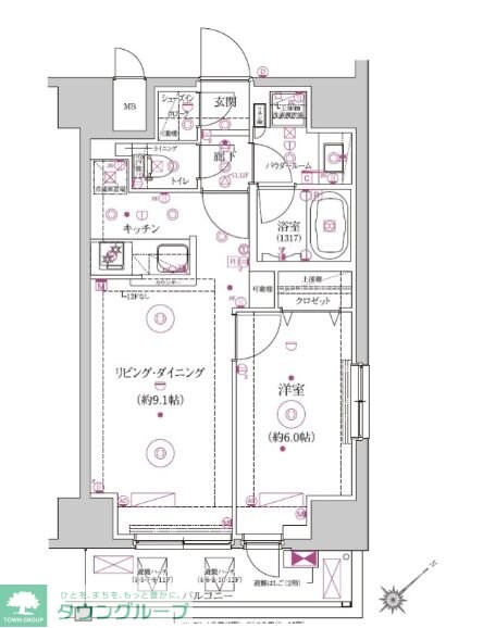
- 間取り/面積
-
1K
/41.74㎡
- 築年
- 2019年10月(築6年)
- 交通
-
東武亀戸線 / 曳舟駅 徒歩5分
東武伊勢崎線・スカイツリーライン / 曳舟駅 徒歩5分
東武伊勢崎線・スカイツリーライン / 東向島駅 徒歩6分
京成押上線 / 京成曳舟駅 徒歩7分
- 所在地
-
東京都 墨田区 東向島 3丁目
地図・周辺情報を見る
- 階数/方位
- 2階(12階建て)
/南東向き
- 空室数
- 同じ建物に空室があと9件あります
空室を見る
- 種別/構造
- マンション/鉄筋コンクリート造
-
電話でお問合せ
03-5830-8566
こだわり設備・特徴 RELUXIA東向島 2階/東京都墨田区東向島3丁目
- 入居時期・条件
-
空予定(2026年02月上旬)
/
保証人不要
/
ペット相談可
/
二人入居可
/
外国人可
/
独身可
- バス・トイレ
- 洗面所にドア / 洗面所独立 / 洗面台 / 洗面化粧台 / 暖房便座 / バス・トイレ別 / 脱衣所 / 温水洗浄便座 / シャワー / 浴室テレビ / シャワー付洗面化粧台 / 浴室乾燥機
- 周辺環境
- 3沿線利用可 / 2駅利用可
- 収納
- 全居室収納 / 玄関収納 / シューズボックス1ヵ所 / クローゼット1ヵ所 / ウォークインクローゼット1ヵ所
- 位置
- 角部屋 / 高層階
- 放送・通信
-
※BS受信可
/
インターネット接続(月額利用料無料)
/
※CS受信可
/
光ファイバー
/
LAN対応
/
ネット専用回線
※インターネット接続環境、BS受信可、CATV、CS受信可について…利用料金は、共益費に含まれるタイプや個別に契約するタイプなど物件により異なります。詳しくは、物件お取り扱い不動産会社にお問合せください。
- その他設備・サービス
- 給湯 / 24時間ゴミ出し可 / 室内洗濯機置場 / 冷房 / 通風良好 / 都市ガス / バルコニー / エレベーター1基 / 2面採光 / 全室2面採光 / 公営上水道 / 照明1台 / 24時間換気システム / 全室エアコン / 敷地内ごみ置き場 / 人感照明センサー / 全居室フローリング
- 建物タイプ・デザイン
- 外壁タイル張り / 分譲賃貸
- 駐輪・駐車
- 自転車置き場 / バイク置場
- 家賃保証会社など
- 保証会社必加入(その他:0.5ヶ月)※必須 初回契約時:50%、[リロ:月1,000円][JRAG:1万円/年(月330円)] [カーサ:月1%][ジャックス:月額保証料1%]※外国籍の方は敷金1ヶ月追加となります。
- 保険
- 損害保険加入要。
- 備考
- 一部費用クレジット決済可能!詳しくは、お問い合わせくださいませ。
- その他諸費用
- その他費用(鍵交換:30800円) / その他費用(引越しムシ駆除:17600円) / その他費用(安心入居サポート:18700円)
- 契約期間
- 一般契約:2年0ヶ月間
- 更新料
- 1.5ヶ月
- 取引形態
- 一般媒介
- 物件管理コード
- C01008696-000000514141459-0001
- 情報更新日
- 2025/12/03
- 次回更新予定日
- 2025/12/17
この物件に無料でお問合せ お問合せ内容を選択してね!
-
電話でお問合せ
03-5830-8566 -
株式会社タウンハウジング東京
浅草店
営業時間:10:00~19:00
-
電話でお問合せ
03-5830-8566
周辺情報 RELUXIA東向島 2階/東京都墨田区東向島3丁目
物件についてお問合せ RELUXIA東向島 2階/東京都墨田区東向島3丁目
【掲載物件情報について】
Woman.CHINTAIでは安心してお部屋探しのできるサイトを目指して、物件情報の精度向上に努めております。Woman.CHINTAIに掲載されている物件情報について万が一相違がございましたら、以下のページからご連絡ください
お問い合わせページ同じ建物の空室情報一覧 RELUXIA東向島 2階/東京都墨田区東向島3丁目
-
- 2階 203号室
- 家賃
-
16.5
万円
(管理費等 20,000円)
- 管理費
- 20,000円
- 敷金/保証金
- --/--
- 礼金/償却
- 1ヶ月/--
- 間取り
- 1K
- 専有面積
- 41.74㎡
- その他
- 南東向き
-
- 2階 203号室
- 家賃
-
16.5
万円
(管理費等 20,000円)
- 管理費
- 20,000円
- 敷金/保証金
- --/--
- 礼金/償却
- 1ヶ月/--
- 間取り
- 1LDK
- 専有面積
- 41.74㎡
- その他
- 南東向き
-
- 2階 203号室
- 家賃
-
16.5
万円
(管理費等 20,000円)
- 管理費
- 20,000円
- 敷金/保証金
- --/--
- 礼金/償却
- 1ヶ月/--
- 間取り
- 1LDK
- 専有面積
- 41.74㎡
- その他
- 南東向き
取扱い店舗 RELUXIA東向島 2階/東京都墨田区東向島3丁目
-
株式会社タウンハウジング東京 浅草店
お問合せ番号:R00514-141459
国土交通大臣免許(1)第9926号- 東京都台東区雷門2-18-15 TSビル2階
- 銀座線 /浅草駅
- 営業時間:10:00~19:00
- 定休日:水曜日
メールでお問合せする 電話でお問合せ
03-5830-8566
選択した物件をまとめて
建物ごとに探す
RELUXIA東向島 2階と同じ最寄り駅にある物件
RELUXIA東向島 2階と同じエリアにある物件
設備・条件から墨田区の物件を再検索
設備・条件から曳舟駅の物件を再検索
設備・条件から東向島駅の物件を再検索





















一人暮らしの女性に嬉しいポイントはこちら!