グランドロアール上新庄 2階/大阪府大阪市東淀川区上新庄2丁目(上新庄駅)の賃貸物件詳細
- 仲介手数料家賃の55%以下
-
空室状況を
聞いてみる -
電話でお問合せ
0120-948-985
- お部屋の状況を確認する(無料)
-
電話でお問合せ
0120-948-985
保証金 --/--
償却 --/--
阪急千里線 / 下新庄駅 徒歩17分
おおさか東線 / JR淡路駅 徒歩20分
阪急京都線 / 相川駅 徒歩22分
- 高い耐久性や断熱・気密性、防音性に優れた鉄筋コンクリート構造です。女性やお子様にも安心のオートロック付き物件です。
女性におすすめのポイント グランドロアール上新庄 2階/大阪府大阪市東淀川区上新庄2丁目
このお部屋は、阪急京都線上新庄駅から徒歩5分に位置する駅近のマンションです。また、上新庄駅や、下新庄駅などの複数駅が利用できるのでアクセスも便利です!
このお部屋はお風呂とトイレが別なので、それぞれ清潔&おしゃれにこだわることができます。また2階以上にあるお部屋で、路面から室内が見られないので女性の一人暮らしでも少し安心。
この建物はオートロックがあるので基本的には住人以外は入れないので安心ですね!
嬉しいのがこのお部屋は礼金がないところ。初期費用が抑えられますね!
もっと見る ▼
-
即入居 -
女子割 -
バス・
トイレ別 -
独立
洗面台 -
オートロック -
2階以上 -
システム
キッチン -
コンロ
二口 -
クロー
ゼット -
室内洗濯
機置き場
この物件に無料でお問合せ お問合せ内容を選択してね!
-
電話でお問合せ
0120-948-985 -
株式会社エリッツ
JR千里丘店
営業時間:10:00~19:00
基本物件情報 グランドロアール上新庄 2階/大阪府大阪市東淀川区上新庄2丁目
- 家賃/管理費
- 6.22万円/10,300円
- 敷金(保証金)/ 礼金(償却)
- --(--)/--(--)
- 初期費用が気になる方は
お気軽にお問合せください! -
初期費用を株式会社エリッツJR千里丘店に聞いてみる!
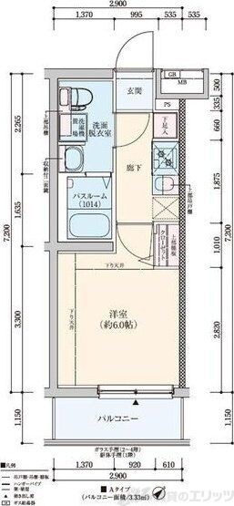
- 間取り/面積
-
1K
/20.88㎡
- 築年
- 2025年02月(1年未満)
- 交通
-
阪急京都線 / 上新庄駅 徒歩5分
阪急千里線 / 下新庄駅 徒歩17分
おおさか東線 / JR淡路駅 徒歩20分
阪急京都線 / 相川駅 徒歩22分
- 所在地
-
大阪府 大阪市東淀川区 上新庄 2丁目
地図・周辺情報を見る
- 階数/方位
- 2階(4階建て)
/東向き
- 空室数
- 同じ建物に空室があと10件あります
空室を見る
- 種別/構造
- マンション/鉄筋コンクリート造
-
電話でお問合せ
0120-948-985
こだわり設備・特徴 グランドロアール上新庄 2階/大阪府大阪市東淀川区上新庄2丁目
- 入居時期・条件
-
応相談※詳細はお問い合わせください
/
保証人不要
/
ペット相談可
/
外国人可
- セキュリティ
- オートロック / 管理人有り / 防犯カメラ / 宅配ボックス / TVモニターフォン
- 周辺環境
- 3沿線利用可 / 3駅利用可
- 収納
- シューズボックス1ヵ所
- 位置
- 角部屋
- 放送・通信
- インターネット接続(月額利用料無料) / 光ファイバー / ネット専用回線
- その他設備・サービス
- 給湯 / 室内洗濯機置場 / ベランダ / フローリング / 都市ガス / バルコニー / エレベーター1基 / 公営上水道 / 照明1台 / 家具・家電付き ※家電のみ / エアコン1台
- 建物タイプ・デザイン
- 分譲賃貸
- 駐輪・駐車
- 自転車置き場 / バイク置場
- 家賃保証会社など
- 保証会社必加入(その他:実費)※エポスカード 初回15,000円、月次月額総賃料の2%
- 保険
- --
- 備考
- 仲介手数料家賃の55% / 高い耐久性や断熱・気密性、防音性に優れた鉄筋コンクリート構造です。女性やお子様にも安心のオートロック付き物件です。
- その他諸費用
- 付属設備(駐輪場代金:330円)※月あたり料金 / その他費用(鍵交換:22000円) / その他費用(室内清掃費用:33000円)
- 契約期間
- 一般契約:2年0ヶ月間
- 取引形態
- 一般媒介
- 物件管理コード
- C01008642-000001175072975-0001
- 情報更新日
- 2025/12/13
- 次回更新予定日
- 2026/01/05
この物件に無料でお問合せ お問合せ内容を選択してね!
-
電話でお問合せ
0120-948-985 -
株式会社エリッツ
JR千里丘店
営業時間:10:00~19:00
-
電話でお問合せ
0120-948-985
周辺情報 グランドロアール上新庄 2階/大阪府大阪市東淀川区上新庄2丁目
- ショッピングセンター/アウトレットモール
- ショッピングセンター/アウトレットモール(ハニーズイオン吹田店)まで 1900m
- 公園
- 公園(片山公園)まで 2610m
- 病院
- 病院(市立吹田市民病院)まで 4090m
- スーパー
- スーパー(業務スーパー内本町店)まで 1230m
- 大学/短大/専門学校
- 大学/短大/専門学校(私立大和大学)まで 2720m
- 役所
- 役所(吹田市役所)まで 2050m
- 病院
- 病院(社会医療法人愛仁会井上病院)まで 4100m
- ドラッグストア
- ドラッグストア(アルカ中島薬局)まで 1520m
- 警察署/交番
- 警察署/交番(大阪府茨木警察署)まで 9160m
物件についてお問合せ グランドロアール上新庄 2階/大阪府大阪市東淀川区上新庄2丁目
【掲載物件情報について】
Woman.CHINTAIでは安心してお部屋探しのできるサイトを目指して、物件情報の精度向上に努めております。Woman.CHINTAIに掲載されている物件情報について万が一相違がございましたら、以下のページからご連絡ください
お問い合わせページ同じ建物の空室情報一覧 グランドロアール上新庄 2階/大阪府大阪市東淀川区上新庄2丁目
取扱い店舗 グランドロアール上新庄 2階/大阪府大阪市東淀川区上新庄2丁目
-
株式会社エリッツ JR千里丘店
お問合せ番号:R01175-072975
国土交通大臣免許(7)第5206号- 大阪府摂津市千里丘東 2丁目10-1 フォルテ摂津2F
- 東海道本線<琵琶湖線・JR京都線> /千里丘駅
- 営業時間:10:00~19:00
- 定休日:毎週水曜日 年末年始
メールでお問合せする 電話でお問合せ
0120-948-985
選択した物件をまとめて
建物ごとに探す
グランドロアール上新庄 2階と同じ最寄り駅にある物件
グランドロアール上新庄 2階と同じエリアにある物件
設備・条件から大阪市東淀川区の物件を再検索
設備・条件から上新庄駅の物件を再検索
設備・条件から下新庄駅の物件を再検索
設備・条件からJR淡路駅の物件を再検索























一人暮らしの女性に嬉しいポイントはこちら!