Park Lane Kujo 4階/大阪府大阪市西区九条1丁目(九条駅)の賃貸物件詳細

家賃:13.9万円 (管理費:10,000円)1LDK46.23㎡
  • 新築
  • 即入居可
  • 仲介手数料家賃の55%以下
敷金/
保証金
13.9万/--
礼金/
償却
--/--
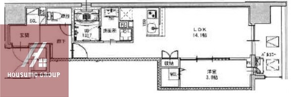
間取り 1LDK
広さ 46.23㎡
4階(14階建て)
築年数 新築
種別 マンション
住所 大阪府大阪市西区九条1丁目
交通 阪神なんば線 / 九条駅 徒歩2分
大阪メトロ長堀鶴見緑地線 / ドーム前千代崎駅 徒歩4分
大阪メトロ千日前線 / 西長堀駅 徒歩15分
  • 退去時、ルームクリーニング料金44,000円。オートロック付き。エレベーター付きのマンションタイプ。バス・トイレ別。室内に洗濯機置場あり。便利な洗面所独立タイプ。シューズボックス付き。バルコニー。

女性におすすめのポイント Park Lane Kujo 4階/大阪府大阪市西区九条1丁目

一人暮らしの女性に嬉しいポイントはこちら!

このお部屋は、阪神なんば線九条駅から徒歩2分に位置する駅近のマンションです。また、九条駅や、ドーム前千代崎駅などの複数駅が利用できるのでアクセスも便利です!
このお部屋はお風呂とトイレが別なので、それぞれ清潔&おしゃれにこだわることができます。また2階以上にあるお部屋で、路面から室内が見られないので女性の一人暮らしでも少し安心。
この建物はオートロックがあるので基本的には住人以外は入れないので安心ですね!
嬉しいのがこのお部屋は礼金がないところ。初期費用が抑えられますね!
スーパーやコンビニが徒歩分圏内に1件あるので一人暮らしに便利。最も近いのは徒歩4分の所にある、肉のハナマサPLUS 千代崎店!
もっと見る 

  • 即入居
    即入居
  • バス・<br/>トイレ別
    バス・
    トイレ別
  • 独立<br/>洗面台
    独立
    洗面台
  • オートロック
    オートロック
  • 2階以上
    2階以上
  • システム<br/>キッチン
    システム
    キッチン
  • コンロ<br/>二口
    コンロ
    二口
  • クロー<br/>ゼット
    クロー
    ゼット
  • 室内洗濯<br/>機置き場
    室内洗濯
    機置き場

この物件に無料でお問合せ お問合せ内容を選択してね!

  • 電話でお問合せ
    06-6531-8126
  • 株式会社エイブル  西長堀店
    営業時間:10:00~18:30

基本物件情報 Park Lane Kujo 4階/大阪府大阪市西区九条1丁目

家賃/管理費
13.9万円/10,000円
敷金(保証金)/ 礼金(償却)
13.9万(--)/--(--)
初期費用が気になる方は
お気軽にお問合せください!
初期費用を株式会社エイブル西長堀店に聞いてみる!

初期費用が気になる方は、

お気軽にお問合せください!

間取り/面積
1LDK (LDK14.1・洋室3.8)/46.23㎡
築年
2026年01月(新築)
交通
阪神なんば線 / 九条駅 徒歩2分
大阪メトロ長堀鶴見緑地線 / ドーム前千代崎駅 徒歩4分
大阪メトロ千日前線 / 西長堀駅 徒歩15分
所在地
大阪府 大阪市西区 九条 1丁目
地図・周辺情報を見る
周辺の治安・環境を問合せる
(無料)
階数/方位
4階(14階建て) /南東向き
空室数
同じ建物に空室があと10件あります
空室を見る
種別/構造
マンション/鉄筋コンクリート造
似た物件を提案してほしい
(無料)

こだわり設備・特徴 Park Lane Kujo 4階/大阪府大阪市西区九条1丁目

入居時期・条件
即入居
すぐ内見出来るか聞く
(無料)
バス・トイレ
洗面所独立 / 洗面化粧台 / バス・トイレ別 / シャワー / トイレ / 浴室乾燥機
キッチン
対面キッチン / システムキッチン / ガスコンロ付
セキュリティ
オートロック / TVモニターフォン
収納
クローゼット / シューズボックス
位置
角部屋
放送・通信
インターネット接続設備あり / 地上デジタル
その他設備・サービス
給湯  / 室内洗濯機置場 / エアコン / 玄関ホール / 電気 / エレベーター / ベランダ / フローリング / 都市ガス / バルコニー / 下水道 / 公営上水道 / 敷地内ごみ置き場 / 集合郵便受け
駐輪・駐車
自転車置き場 / バイク置場
家賃保証会社など
--
保険
損害保険加入要。
備考
仲介手数料家賃の55% / 保証会社加入要(初回月額総額50%、月次保証料800円)。
その他諸費用
付属設備(バイク置き場:2000円) / 付属設備(駐輪場代金:300円)
契約期間
一般契約:2年間
取引形態
媒介
物件管理コード
000000199-000000000739363-0007
情報更新日
2026/04/16
次回更新予定日
2026/04/30

この物件に無料でお問合せ お問合せ内容を選択してね!

  • 電話でお問合せ
    06-6531-8126
  • 株式会社エイブル  西長堀店
    営業時間:10:00~18:30

周辺情報 Park Lane Kujo 4階/大阪府大阪市西区九条1丁目

物件の位置に戻る

地図アプリで見る

スーパー
スーパー(肉のハナマサPLUS 千代崎店)まで 300m

物件についてお問合せ Park Lane Kujo 4階/大阪府大阪市西区九条1丁目

お問合せ店舗:株式会社エイブル 西長堀店
お名前【必須】
お名前(カナ)
ご連絡先【いずれか必須】

メールアドレス

電話番号

※メール受信制限をしている方は、@chintai.co.jpからのメールを受信できるよう設定の変更をお願い致します。

メールアドレス/電話番号【いずれか必須】
  • @gmail.com
  • @ezweb.ne.jp
  • @au.com
  • @i.softbank.jp
  • @yahoo.co.jp
  • @docomo.ne.jp
  • @softbank.ne.jp

※メール受信制限をしている方は、@chintai.co.jpからのメールを受信できるよう設定の変更をお願い致します。

お問い合わせ内容【必須】
    • 下記より重視する条件を選択してください(複数選択可)

下記より重視する条件を選択してください(複数選択可)

コメント【任意】
もっと詳細な問合せ情報を入力する(任意)

お引越し予定日、希望するお部屋の条件など、ご自由に記入してください

個人情報の扱いについて同意のうえ、「お問合せを完了する」ボタンを押してください。

本サービスは、CHINTAIが窓口となり、お客様からのお問合せについて、情報提供元の不動産会社に対して仲介・転送を行うものです。

ご入力いただいた個人情報は、CHINTAIからお問合せ先の不動産会社へ提供し、資料送付・お知らせの電子メール送信・電話連絡等の目的で各不動産会社が保管します。

お問合せ先不動産会社が保管する個人情報の取扱いについては、各不動産会社に直接お問合せください。

CHINTAIは本サービスを円滑に運用するため、お預かりした個人情報を一定期間保管します。

CHINTAIにおける個人情報の取扱いについては、こちらをご覧ください。

必須項目に未入力・エラーがあります

入力内容をお確かめください。

必須項目にエラーがあります

【掲載物件情報について】

Woman.CHINTAIでは安心してお部屋探しのできるサイトを目指して、物件情報の精度向上に努めております。Woman.CHINTAIに掲載されている物件情報について万が一相違がございましたら、以下のページからご連絡ください

お問い合わせページ

同じ建物の空室情報一覧 Park Lane Kujo 4階/大阪府大阪市西区九条1丁目

もっと見る

選択した物件をまとめて問合せる

取扱い店舗 Park Lane Kujo 4階/大阪府大阪市西区九条1丁目

選択した物件をまとめて

住所から再検索

Park Lane Kujo 4階と同じ最寄り駅にある物件

Park Lane Kujo 4階と同じエリアにある物件