レボルタアツタ 3階の建物情報【Woman.CHINTAI】女性の一人暮らしを応援する賃貸物件サイト

  • お気に入り
  • 最近見た物件
  • MENU
検索メニュー
タイプから探す
こだわりから探す
建物から探す
保存した検索結果
このサイトについて
記事を読む
close

woman.chintai

レボルタアツタ 3階/愛知県名古屋市熱田区南一番町の建物情報

最終更新日:2025年12月23日

最終更新日:2025年12月23日

このページの情報は広告情報ではありません。
過去から現在までWoman.CHINTAIに掲載のあった物件情報を元に作成した参考ページです。

    • nowprinting
>
<
  • nowprinting
レボルタアツタを見た人におすすめの物件(件)
    • 万円/円
    • 女性にお得!
    • 敷金
      保証金
    • 礼金
      償却
    • /
    • /
    • 初期費用を聞く
    • 詳細を見る
    • お問合せする
もっと見る▼
似た物件を問合せる
レボルタアツタの空室情報(0件)

掲載している物件はありません

似た物件を問合せる

家賃相場

愛知県名古屋市熱田区の家賃相場
  • 万円
更新日時
※Woman.CHINTAIの掲載情報より算出
  • 周辺情報
  • 取扱い店舗
  • 周辺物件
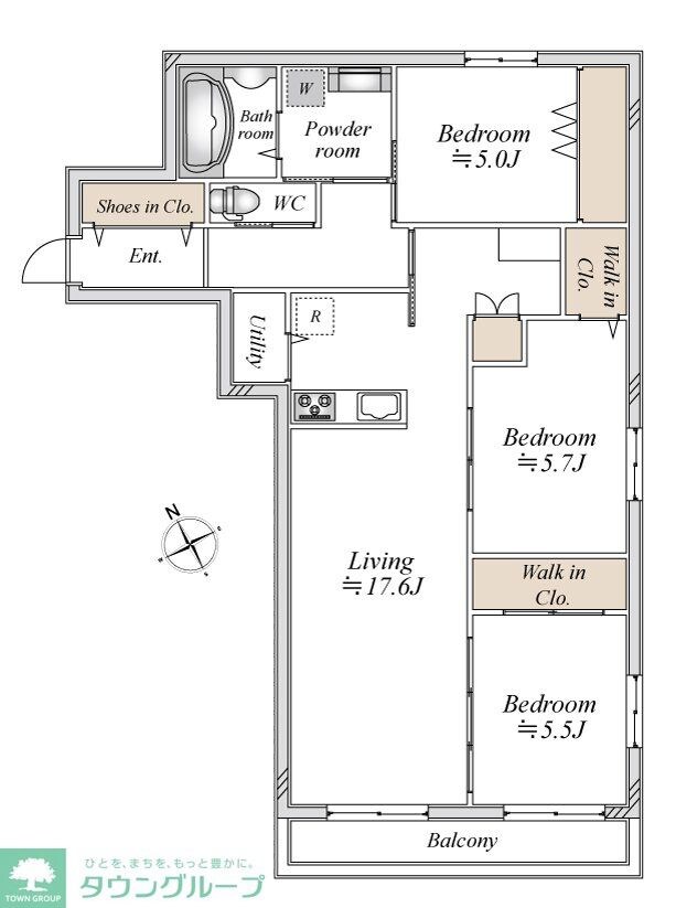
レボルタアツタの基本物件情報
住所
愛知県名古屋市熱田区南一番町
交通
名鉄常滑線・空港線 / 豊田本町駅 徒歩25分
名古屋市営地下鉄名港線 / 六番町駅 徒歩20分
名古屋市営地下鉄名港線 / 東海通駅 徒歩12分
名古屋市営地下鉄名港線 / 港区役所駅 徒歩22分
築年
2025年06月(1年未満)
種別/構造
アパート/木造
階建
3階建
駐車場
駐車場あり

過去から現在までにWoman.CHINTAIに掲載のあった物件情報を元に作成した参考ページです。
間取りや掲載時期によって部屋の状況は異なり、全ての部屋と一致するものではございません。

建物設備や周辺環境

一人暮らしの女性に嬉しいポイントはこちら!

このお部屋は、名鉄常滑線・空港線豊田本町駅から徒歩25分に位置するアパートです。また、豊田本町駅や、六番町駅などの複数駅が利用できるのでアクセスも便利です!
また、この建物はオートロックがあるので防犯面を重視する女性には魅力的なポイント!またこの建物は築3年以内の新しい物件で、おしゃれで可愛いお部屋でのライフスタイルが叶いそうですね。また宅配ボックスが備え付けられているため、対面で荷物を受け取らずにすみ、急な外出の心配をしなくてもネットショッピングが楽しめます。
もっと見る ▼

建物設備
  • オートロック
  • 築浅
  • 駅近
  • 敷地内ごみ置き場
  • 宅配ボックス
  • デザイナーズ
周辺環境
  • ドラッグストア・ディスカウントショップ
  • 交番・警察署
  • コンビニ・スーパー・100均
  • カフェ・飲食店
  • ショッピング

※建物から500m以内に存在する場合にアイコン表示しています。(ショッピングは1㎞以内の場合)

周辺情報

物件の位置に戻る

地図アプリで見る

  • もっと見る ▼

おすすめの記事

レボルタアツタの駅やエリアに関する記事を読む
>
<

取扱い店舗

レボルタアツタ周辺が得意な店舗
  • 株式会社エイブル  熱田店

    店舗外観写真
    国土交通大臣(7)第5338号
    女性スタッフ対応
    • 愛知県名古屋市熱田区神宮4-1-1
    • 名古屋市営地下鉄名城線 /熱田神宮伝馬町駅
    • 営業時間:10:00~18:30
    • 定休日:年末年始(2025/12/27~2026/1/3)

    052-683-8251

    メールでお問合せする 電話でお問合せ
    052-683-8251

    メールでお問合せする

    女性におすすめのポイント
    • 女性スタッフがいるので、気兼ねなく相談していただけます。
    • また、株式会社エイブル熱田店では仲介手数料家賃の55%以下なので、初期費用を抑えることができますよ!
    • さらに、保証人に関して不安な方は、相談可能ですのでご安心ください。
    もっと見る▼

    株式会社エイブル 熱田店

株式会社エイブル  熱田店の取り扱い物件
    • 物件内観写真
    • 物件間取画像
    • Ju-Jitsu Terrace
    • 4.6万円 / 3,000円
    • 1R / 22.41㎡
      南向き
      名鉄名古屋本線 / 本笠寺駅 徒歩9分
    • メールでお問合せ
    • 物件内観写真
    • 物件間取画像
    • ドミール名和
    • 6万円 / 3,300円
    • 2LDK / 58.53㎡
      南向き
      名鉄常滑線・空港線 / 名和駅 徒歩11分
    • メールでお問合せ
    • 物件内観写真
    • 物件間取画像
    • 第一河村ビル
    • 6万円 / --円
    • 2LDK / 54㎡
      南向き
      名古屋市営地下鉄桜通線 / 野並駅 徒歩8分
    • メールでお問合せ
    • 物件内観写真
    • 物件間取画像
    • クレリア南一番
    • 7.5万円 / 4,200円
    • 1LDK / 44.25㎡
      南向き
      名古屋市営地下鉄名港線 / 東海通駅 徒歩15分
    • メールでお問合せ
    • 物件内観写真
    • 物件間取画像
    • 美佳ハイツ
    • 4.4万円 / 6,000円
    • 1K / 24.06㎡
      東向き
      東海道本線 / 熱田駅 徒歩15分
    • メールでお問合せ
    • 物件外観写真
    • 物件間取画像
    • あおいマンション
    • 7.4万円 / 8,000円
    • 3LDK / 63.38㎡
      南向き
      名鉄常滑線・空港線 / 柴田駅 徒歩6分
    • メールでお問合せ
    • 物件内観写真
    • 物件間取画像
    • 第三奥村マンション
    • 6.3万円 / 6,000円
    • 1LDK / 38.09㎡
      南向き
      名古屋市営地下鉄東山線 / 八田駅 徒歩7分
    • メールでお問合せ
    • 物件外観写真
    • 物件間取画像
    • ハーモニーテラス中野本町Ⅱ
    • 5.9万円 / 4,000円
    • 1DK / 26.97㎡
      南向き
      名古屋市営地下鉄名港線 / 日比野駅 徒歩10分
    • メールでお問合せ
    • 物件内観写真
    • 物件間取画像
    • サンシャインタナカ
    • 6.3万円 / 3,300円
    • 1LDK / 42㎡
      南向き
      名古屋臨海高速鉄道<あおなみ線> / 南荒子駅 徒歩13分
    • メールでお問合せ
    • 物件内観写真
    • 物件間取画像
    • ポートシティ高木2
    • 6.1万円 / 5,400円
    • 3LDK / 65.05㎡
      南向き
      名古屋臨海高速鉄道<あおなみ線> / 荒子川公園駅 徒歩20分
    • メールでお問合せ
    • 物件内観写真
    • 物件間取画像
    • スカイ・メゾン
    • 7万円 / 5,000円
    • 3DK / 57.6㎡
      東向き
      名古屋市営地下鉄名港線 / 六番町駅 徒歩6分
    • メールでお問合せ
    • 物件内観写真
    • 物件間取画像
    • コンフォート二番
    • 6.3万円 / 2,000円
    • 1DK / 36.8㎡
      東向き
      名古屋市営地下鉄名港線 / 六番町駅 徒歩8分
    • メールでお問合せ
    • 物件内観写真
    • 物件間取画像
    • サンハイツ中村
    • 6.3万円 / --円
    • 2LDK / 46.05㎡
      南向き
      名古屋市営地下鉄名港線 / 六番町駅 徒歩8分
    • メールでお問合せ
    • 物件内観写真
    • 物件間取画像
    • ポ-トシティ高木
    • 5.8万円 / 5,400円
    • 3LDK / 65㎡
      南向き
      名古屋臨海高速鉄道<あおなみ線> / 荒子川公園駅 徒歩20分
    • メールでお問合せ
    • 物件内観写真
    • 物件間取画像
    • グロリア
    • 8.2万円 / 6,000円
    • 2LDK / 57.83㎡
      南向き
      名古屋市営地下鉄東山線 / 高畑駅 徒歩18分
    • メールでお問合せ
    • 物件内観写真
    • 物件間取画像
    • ピボット ヴァンベール
    • 3.5万円 / 6,000円
    • 1K / 17.81㎡
      東向き
      名古屋市営地下鉄鶴舞線 / 大須観音駅 徒歩9分
    • メールでお問合せ
    • 物件外観写真
    • 物件間取画像
    • Be CinC
    • 3.95万円 / 6,000円
    • 1K / 17.45㎡
      南向き
      名古屋市営地下鉄名城線 / 熱田神宮伝馬町駅 徒歩7分
    • メールでお問合せ
    • 物件内観写真
    • 物件間取画像
    • サンフォルム打中
    • 4.8万円 / 3,000円
    • 1K / 29.16㎡
      南向き
      名古屋市営地下鉄東山線 / 高畑駅 徒歩15分
    • メールでお問合せ
    • 物件内観写真
    • 物件間取画像
    • Warren juichiyaⅡ
    • 5.75万円 / 3,500円
    • 1LDK / 30.06㎡
      北向き
      名古屋臨海高速鉄道<あおなみ線> / 稲永駅 徒歩10分
    • メールでお問合せ
    • 物件内観写真
    • 物件間取画像
    • Bonne fraise
    • 4.5万円 / 3,000円
    • 1K / 20.25㎡
      南向き
      名古屋市営地下鉄東山線 / 高畑駅 徒歩12分
    • メールでお問合せ
>
<
  • 株式会社エイブル  熱田店の物件一覧はこちら!

レボルタアツタ周辺の賃貸マンション・アパート情報

    • nowprinting
    • nowprinting
    • マンション
      愛知県名古屋市熱田区三番町19丁目
    • グランドメゾン三番町
    • センチュリーパーク千年 北棟の物件外観写真
    • センチュリーパーク千年 北棟の物件外観写真
    • マンション
      愛知県名古屋市熱田区南一番町
    • センチュリーパーク千年 北棟
    • nowprinting
    • nowprinting
    • マンション
      愛知県名古屋市熱田区南一番町
    • センチュリーパーク千年
    • nowprinting
    • nowprinting
    • アパート
      愛知県名古屋市熱田区三番町
    • BREEZE(ブリーズ)
    • アネシスの物件外観写真
    • nowprinting
    • アパート
      愛知県名古屋市熱田区三番町
    • アネシス
    • nowprinting
    • nowprinting
    • マンション
      愛知県名古屋市熱田区三番町
    • 伊藤ビル
    • カ-サ千年の物件外観写真
    • nowprinting
    • マンション
      愛知県名古屋市熱田区三番町
    • カ-サ千年
    • nowprinting
    • nowprinting
    • マンション
      愛知県名古屋市熱田区南一番町
    • 佐藤ハイツ
    • nowprinting
    • nowprinting
    • アパート
      愛知県名古屋市熱田区三番町11-11
    • みかわ荘
    • ハイツ ショウの物件外観写真
    • ハイツ ショウの物件外観写真
    • ハイツ
      愛知県名古屋市熱田区三番町14丁目
    • ハイツ ショウ
    • グランデ三番町の物件外観写真
    • グランデ三番町の物件外観写真
    • マンション
      愛知県名古屋市熱田区三番町
    • グランデ三番町
    • リブレア三番町の物件外観写真
    • nowprinting
    • アパート
      愛知県名古屋市熱田区三番町
    • リブレア三番町
    • センチュリーパーク千年 南棟の物件外観写真
    • nowprinting
    • マンション
      愛知県名古屋市熱田区南一番町
    • センチュリーパーク千年 南棟
    • nowprinting
    • nowprinting
    • マンション
      愛知県名古屋市熱田区南一番町
    • 一光ハイツ南一番町
    • nowprinting
    • nowprinting
    • マンション
      愛知県名古屋市熱田区三番町
    • グリーンノア
    • nowprinting
    • nowprinting
    • アパート
      愛知県名古屋市熱田区三番町
    • レオパレス東海通第7
    • ハイツSHOの物件外観写真
    • ハイツSHOの物件外観写真
    • アパート
      愛知県名古屋市熱田区三番町
    • ハイツSHO
    • nowprinting
    • nowprinting
    • マンション
      愛知県名古屋市熱田区南一番町
    • レオパレス南一番
    • センチュリーパーク千年の物件外観写真
    • センチュリーパーク千年の物件外観写真
    • マンション
      愛知県名古屋市熱田区南一番町
    • センチュリーパーク千年
    • nowprinting
    • nowprinting
    • アパート
      愛知県名古屋市熱田区三番町
    • BREEZE(ブリーズ)
>
<

レボルタアツタをみた人はこんな物件も興味を持っています

>
<

この建物の情報から、建物ライブラリー物件を再検索

この建物の住所からライブラリー物件を探す

  • 名古屋市熱田区
  • 名古屋市熱田区南一番町

この建物の最寄り駅からライブラリー物件を探す

  • 豊田本町駅
  • 六番町駅
  • 東海通駅
  • 港区役所駅

この建物の沿線からライブラリー物件を探す

  • 名鉄常滑線・空港線
  • 名古屋市営地下鉄名港線

この物件の情報から、現在募集中の賃貸物件を探す

この建物の住所から募集中の賃貸物件を探す

  • 名古屋市熱田区
  • 名古屋市熱田区南一番町

この建物の最寄駅から募集中の賃貸物件を探す

  • 豊田本町駅
  • 六番町駅
  • 東海通駅
  • 港区役所駅

この建物の沿線から募集中の賃貸物件を探す

  • 名鉄常滑線・空港線
  • 名古屋市営地下鉄名港線
このエリアが得意な店舗に直接問合せる

選択した物件をまとめて

    賃料:万円(管理費等:円)

    • 敷
      礼
    • メールで問合せ
    • 電話で問合せ

    お部屋の状況を確認する

    >
    <
    • 物件詳細はこちら
    • 空室状況を
      聞いてみる
    • エイブル女子割・学割開催中!

      エイブルの仲介手数料は家賃の0.55ヶ月分

      • 万円
      • さらに! 学生または
        女性の一人暮らしの場合
        10%OFF 万円
      • さらに! 学生かつ
        女性の一人暮らしの場合
        20%OFF 万円
      • ※エイブル女子割及び学割の適用には条件がございます。
    • ファッションレンタル「airCloset」

      月額制で何度でも手元に届く!プロのスタイリストが、あなたにピッタリのコーディネートをお届けします。

      女子割_特典画像

      MAISON ABLE CLUB会員特典
      ・レギュラープラン通常9,800円(税別)のところ初月の月額2,000円OFF 初月7,800円(税別)
      ※ご利用には条件がございます。詳細ページにてご確認ください。
      ※特典の内容は変更となる可能性がございます。あらかじめご了承ください。
      詳細はこちら

    • 月額定額制・厳選美容室通い放題「MEZON」

      'サロン通いを日常に'シャンプー・ブロー・ヘッドスパ・トリートメントなど通い放題サービス

      女子割_特典画像

      MAISON ABLE CLUB会員特典
      ・サービス初回利用から2ヵ月間全メニュー 20%OFF 他
      ※ご利用には条件がございます。詳細ページにてご確認ください。
      ※特典の内容は変更となる可能性がございます。あらかじめご了承ください。
      詳細はこちら

    • 毎月届くサプライズBOX MY LITTLE BOX

      毎日を頑張る自分へのご褒美に、毎月サプライズを贈ってみませんか?

      女子割_特典画像

      MAISON ABLE CLUB会員特典
      ・初回限定価格 通常価格3,350円/月のところ、1,350円OFFの2,000円(税・送料込)
      ※ご利用には条件がございます。詳細ページにてご確認ください。
      ※特典の内容は変更となる可能性がございます。あらかじめご了承ください。
      詳細はこちら

    >
    <
    この物件の良かったところは?

    ハートをタップして、
    5段階でお気に入り度合いを登録してね♪

    広さ
    アクセス
    費用
    きれいさ
    条件
    登録する
    お気に入りから削除する

    画像モーダル

    • Woman.CHINTAI賃貸TOP
    • Woman.CHINTAI物件ライブラリー
    • 愛知県
    • 名古屋市熱田区
    • レボルタアツタ
    • Instagram
    • Twitter

    • 運営会社
    • 個人情報保護方針
    • お問い合わせ
    • サイトマップ
    • Woman.CHINTAIについて・情報の見方
    • サイトポリシー

    オススメコンテンツ

    • 賃貸物件の疑問解決!教えてエイブルAGENT
    • 賃貸生活の工夫を紹介!CHINTAI情報局
    • 女性の賃貸生活を応援!Woman.CHINTAI
    • 学生の一人暮らし向け賃貸!エイブル進学応援部
    (C) CHINTAI Corporation All rights reserved.

    オススメコンテンツ

    • 賃貸物件の疑問解決!教えてエイブルAGENT
    • 賃貸生活の工夫を紹介!CHINTAI情報局
    • 女性の賃貸生活を応援!Woman.CHINTAI
    • 学生の一人暮らし向け賃貸!エイブル進学応援部