門真市朝日町貸家(事務所使用・大型犬飼育可) 2階/大阪府門真市朝日町の建物情報
最終更新日:2026年03月03日
最終更新日:2026年03月03日
- 住所
- 大阪府門真市朝日町
- 交通
-
大阪モノレール大阪モノレール線 / 門真市駅 徒歩30分京阪本線・鴨東線 / 大和田駅 徒歩7分京阪本線・鴨東線 / 萱島駅 徒歩5分
- 築年
- 1979年12月(築46年)
- 種別/構造
- 貸家/木造
- 階建
- 2階建
- 駐車場
- 駐車場なし
過去から現在までにWoman.CHINTAIに掲載のあった物件情報を元に作成した参考ページです。
間取りや掲載時期によって部屋の状況は異なり、全ての部屋と一致するものではございません。
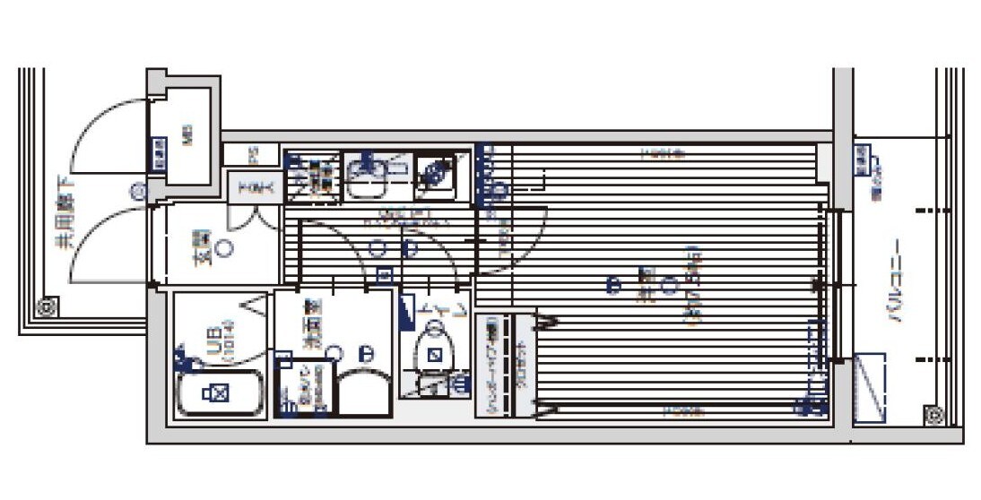
建物設備や周辺環境
このお部屋は、大阪モノレール大阪モノレール線門真市駅から徒歩30分に位置する貸家です。また、門真市駅や、大和田(大阪)駅などの複数駅が利用できるのでアクセスも便利です! もっと見る ▼
- オートロック
- 築浅
- 駅近
- 敷地内ごみ置き場
- 宅配ボックス
- デザイナーズ
- ドラッグストア・ディスカウントショップ
- 交番・警察署
- コンビニ・スーパー・100均
- カフェ・飲食店
- ショッピング
※建物から500m以内に存在する場合にアイコン表示しています。(ショッピングは1㎞以内の場合)
取扱い店舗
-
国土交通大臣(7)第5338号女性スタッフ対応
- 大阪府門真市新橋町5-31 1・2F
- 京阪本線・鴨東線 /門真市駅
- 営業時間:10:00~18:30
- 定休日:年末年始
- 女性におすすめのポイント
-
- 女性スタッフがいるので、気兼ねなく相談していただけます。
- また、株式会社エイブル門真店では仲介手数料家賃の55%以下なので、初期費用を抑えることができますよ!
- さらに、保証人に関して不安な方は、相談可能ですのでご安心ください。
門真市朝日町貸家(事務所使用・大型犬飼育可)周辺の賃貸マンション・アパート情報
選択した物件をまとめて

一人暮らしの女性に嬉しいポイントはこちら!